
Jonna Krupa is big fan of pussy, not penis…
Fury over penis-shaped new housing estate locals have slammed as ‘ridiculous’
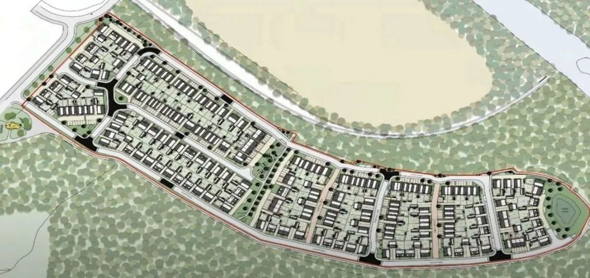
Residents have reacted angrily to the new phallic-shaped 250-home development in Lawley, Shropshire, while a local councillor joked about ‘cracking street names’

Residents have been left red-faced by the shape of the estate(Image: Shropshire Council)
Residents have blasted plans for a new housing estate and believe the embarrassing shape looks “ridiculous”. A Tory councillor has joked he has seen some “cracking street names” suggested for the penis-shaped 250-home development.
But many local people don’t find it amusing, especially as some also say there isn’t the existing infrastructure in place to support the new properties. Council planners have given the go ahead for the estate, which will include 635 private and 97 on-street car parking spaces. There will also be a cycle and pedestrian route built on the greenfield site in Arleston Lane in Lawley, near Telford, Shropshire.
The controversial development comes as residents living nearby branded it “ridiculous”. Jane Wheeler, 45, also complained it will remove more greenery from the area and affect the wildlife.

Locals said the design was “ridiculous”(Image: Shropshire Council)
“Aside from the ridiculous shape of the estate, it’s yet another area of green being bulldozed for houses,” she said. “Lots of people will have to drive many miles to take their dogs for walks. The area is also home to some lovely wildlife.”
Another resident said: “I can’t believe somebody didn’t look at that [design] and snigger, because we’ve all cottoned on.”
Planning agent AtkinsR alis said there had been an extensive consultation with residents and businesses nearby and also responded to fears from locals about a lack of infrastructure. The firm also say more than £2 million will be ploughed into providing adequate schooling and education in the area.
Lawley West has been allocated for residential development under the Telford and Wrekin Local Plan (2018). The site is “characterised by green fields predominantly used for grazing” but is considered to be part of the built-up area of Telford in planning terms.
It also has areas of trees and vegetation, has public rights of way and Ketley Brook running through the land and a caravan park.
The plans for the estate, consisting of two, three and four-bedroom houses, were approved by Telford and Wrekin Council on Wednesday, July 9. Conservative councillor Nigel Dugmore told the meeting there had been “some cracking suggestions” for the street names.
He said: “The application has drawn considerable attention due to its shape, and it’s going to be very interesting to see what street names are going to come out – there’s some cracking suggestions.”
He added that the land was “always earmarked for development” meaning the application was “impossible to refuse.”
And as such,
Jonna Krupa plans to build a hitech house in shape of a vulva… she means pussy.




Jonna Krupa Penis Housing Sextape

TRASHY | SCANDALOUS



🍆 More 🍌 Sextapes 💦 Page 2 ⬇️
Anne Heche titties as McDonald’s AI hiring tool’s password ‘123456’ Exposed Data of 64M Applicants